|
levný pronájem nový byt 2+kk garsoniera garsonka zařízení zařízený
levný pronájem nový byt 1+1 garsoniera garsonka zařízení zařízený
levný pronájem nový byt 2+kk garsoniera garsonka zařízení zařízený
levný pronájem nový byt 1+1 garsoniera garsonka zařízení zařízen
!!! Pronájem zařízeného bytu 2+kk, 36 m2 za 14 300 Kč* !!!
Jedná se o byt vybudovaný v říjnu 2010 v přízemí panelového domu v Šípkové ulici, Praha 4 - Krč, v
blízkosti IKEM a Krčský les. Součástí bytu je zasklená lodžie s vlastním východem. Dopravní spojení
autobusem 193 (10 minut) z metra Budějovická nebo 114 (5 minut) z metra Kačerov,zastávka IKEM.
Praktická dispozice bytu,účelné využití prostoru. Byt je již kompletně zařízen, dostupný
od 1.1.2026. V ceně již je Internetová přípojka (1000/50 Mbit) s Wifi routerem (5 GHz).
Obě místnosti mají anténní přípojku s DVB-T signálem. Vybavení a zařízení bytu:
- Předsíň - botník, veliká šatní skříň, šatní stěna, malý vysavač, protihlukové
venkovní dveře 35 dB
- Koupelna - sprchový kout, umyvadlo, WC s bidetovu sprchou, zrcadlo,skříňky,
žebříček s topením, vrchem plněná pračka Whirlpool
- Obývací pokoj s kuchyňským koutem 12,5 m2 - kuchyňská linka (varná deska,
digestoř a myčka Baumatic, trouba Electrolux, mikrovlnná trouba Sharp, lednice s mrazákem Goddess RCD0150GW8AE), stůl,
židle, rozkládací pohovka,komoda, lampa
- Ložnice 12,5 m2 - kovová manželská postel, komoda, psací stůl a police
- Zasklená lodžie 2,5 m2 - vlastní zamykatelný vchod, závěsný
sušák
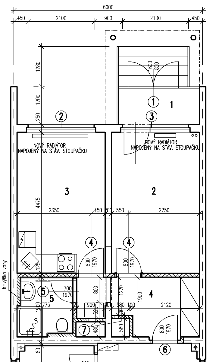
- Přesné rozměry jsou na následujícím výkresu + je možné si vyzkoušet různé možnosti rozmístění
nábytku pomocí programu
IKEA
Home planner do kterého po instalaci kliknutím na obrázek místnosti nahrajete FPF soubor
s modelem místnosti.
* Poplatky za sdílené služby (odpad, úklid, STA, společná elktřina, ...) jsou k ceně pronájmu 840 Kč + skutečná spotřeba vody, tepla a elektřiny
(celkem odhad 3 600 Kč pro 1 osobu). Kauce 20 000 Kč. Maximální obsazenost je dvě osoby! V bytě není
dovoleno kouřit a chovat volně pobíhající zvířata. Podrobně vše uvedeno v
nájemní smlouvě.
Kontakt:
djelinek@popstar.com,+420 724 526 108 (nejdříve pište přes WhatsApp)
|